Masterplanning & Design Guides
Weymouth Esplanade Design Codes 2007 Kings Cross Hinterlands 2009 Thames Walkway 2009 Westway Link 2013 London Road Movement & public realm strategy 2014
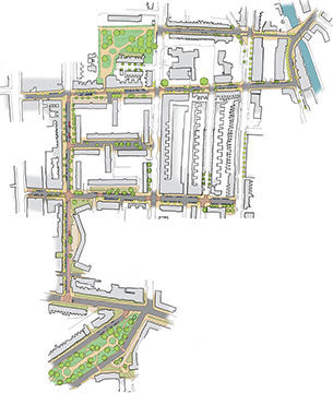
KINGS CROSS HINTERLANDS Location: Kings Cross / Camden Town NW1 Client: London Borough of Camden Working with Roger Tym and Partners and Tibbalds Planning to develop a place shaping strategy aimed at ensuring the economic benefits from the Kings Cross development could be extended to the existing deprived communities through a coherent set of initiatives. Our role was to develop a landscape and movement strategy for the Kings Cross area aimed at enhancing the sense of place and identity of the area. Proposals included enhanced east - west pedestrian links, reinforcing local shopping and community centres and reducing the impact of arterial routes.

Dally Henderson  :  Landscape Design  :  Planning  :  Urban Design

07579 219534 / 07961 454319

info@dallyhenderson.co.uk

www.dallyhenderson.co.uk